The property offers particularly spacious living accommodation spread over three floors providing versatile and generous space for the whole family and guests.
The sitting room captures the original character of the property featuring an attractive fireplace with wood burning stove as its centrepiece.
The dining room enjoys a cosy open fire with fireside display alcoves.
Towards the end of a long hallway there is access to the garden, and an opening to a modern fitted kitchen with integrated oven and microwave.
The kitchen conveniently flows into the utility/boot room with a cloakroom positioned on the left. A door then opens to a garden/games room currently enjoyed as a ‘man cave’.
Moving to the first floor there is a huge family shower room and three bedrooms, two of which are large doubles. Venturing to the second (top) floor there are two further bedrooms and a bathroom.
The rear garden has a pleasant paved seating area providing the perfect space to sit and relax or entertain family and friends. The remainder of the garden is mainly laid to lawn with a pathway extending to the rear of the garden with work in process to provide off road parking.
Although there are some areas of the property that require maintenance, this is a wonderful and rare opportunity to purchase an imposing period property in a central location with impressive and versatile living accommodation.
ACCOMMODATION
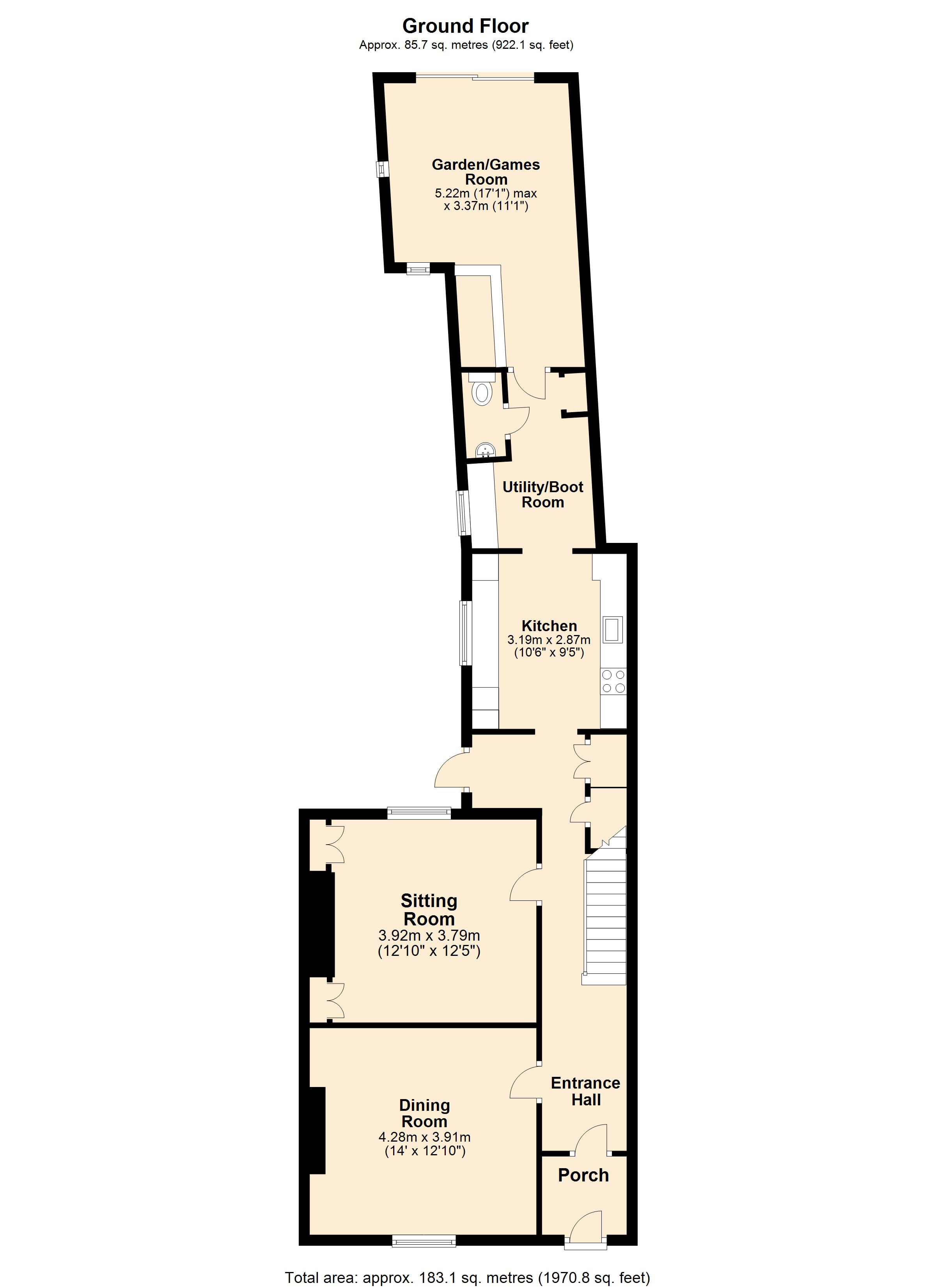
GROUND FLOOR
Original front door to:
ENTRANCE VESTIBULE: Dado rail, hooks and shelving for coats and boots and door to:
ENTRANCE HALL: A long hallway with dado rail, two understairs cupboards, radiator and door to garden.
SITTING ROOM: 12’10” x 12’5” An attractive fireplace with a large brick opening with fitted wood burning stove and painted timber mantle, fireside cabinets, sash window to rear aspect and Victorian style radiator.
DINING ROOM: 14’ x 12’10” Feature cast iron fireplace with timber surround and mantle, fireside alcoves with fitted shelving, exposed floorboards, secondary double glazed window to front aspect and radiator.
KITCHEN: 10’6” x 9’5” A modern stylish kitchen with inset stainless steel sink unit with cupboard below, further range of gloss fronted tower and base units topped with a work surface, fitted shelving, integrated oven and microwave, exposed timber, painted wood panelling, sash window to side aspect and opening to:
UTILITY ROOM: Space and plumbing for washing machine and tumble dryer, exposed timber, double glazed window to side aspect, fitted bench, exposed brick and stonework and doors to cloakroom and games/garden room.
CLOAKROOM: Low level WC, wash basin, exposed stonework and timber.
GARDEN/GAMES ROOM: 17’1” (narrowing to 11’1”) x 11’5” Dual aspect double glazed windows, sliding double glazed patio door to rear garden, feature wall with rustic timber and fitted bar.
From the entrance hall stairs to first floor landing. Radiator and window to side aspect.
FIRST FLOOR
BEDROOM 1: 13’1” x 12’9” Feature cast iron fireplace with painted timber surround, sash window to front aspect and radiator.
BEDROOM 2: 12’9” x 12’5” Feature fireplace, radiator and double glazed window overlooking the rear garden.
BEDROOM 5/STUDY: 9’2” x 5’9” Radiator, fitted wardrobe and sash window to front aspect.
SHOWER ROOM: 11’10” x 9’ (max) A modern stylish suite comprising large walk-in shower, vanity wash basin unit, low level WC with concealed cistern, Victorian style radiator, metro style tiling, downlighters, airing cupboard housing wall mounted gas boiler with shelving for linen.
From the first floor landing stairs to second floor landing.
SECOND FLOOR
BEDROOM 3: 13’ x 9’4” Radiator and window to rear aspect.
BEDROOM 4: 13’9” x 9’6” Radiator and window to front aspect.
BATHROOM: Panelled bath, low level WC, pedestal wash hand basin, radiator and tiled to splash prone areas.
OUTSIDE
REAR GARDEN: A pleasant paved seating area provides the perfect space for alfresco dining and entertaining with the remainder of the garden mainly laid to lawn. A pathway extends to the rear of the garden where there is work in process to provide off road parking.
SERVICES: Mains water, electricity, drainage, gas central heating and telephone all subject to the usual utility regulations.
What3words: revisit.gather.difficult
VIEWING: Strictly by appointment through the agents.
Important notice: Hambledon Estate Agents state that these details are for general guidance only and accuracy cannot be guaranteed. They do not constitute any part of any contract. All measurements are approximate and floor plans are to give a general indication only and are not measured accurate drawings therefore room sizes should not be relied upon for carpets and furnishings. No guarantees are given with regard to planning permission or fitness for purpose. No apparatus, equipment, fixture or fitting has been tested. Items shown in photographs are not necessarily included. Purchasers must satisfy themselves on all matters by inspection.
An imposing four bedroom period town house situated in the heart of Wincanton close to local amenities.
Read less